








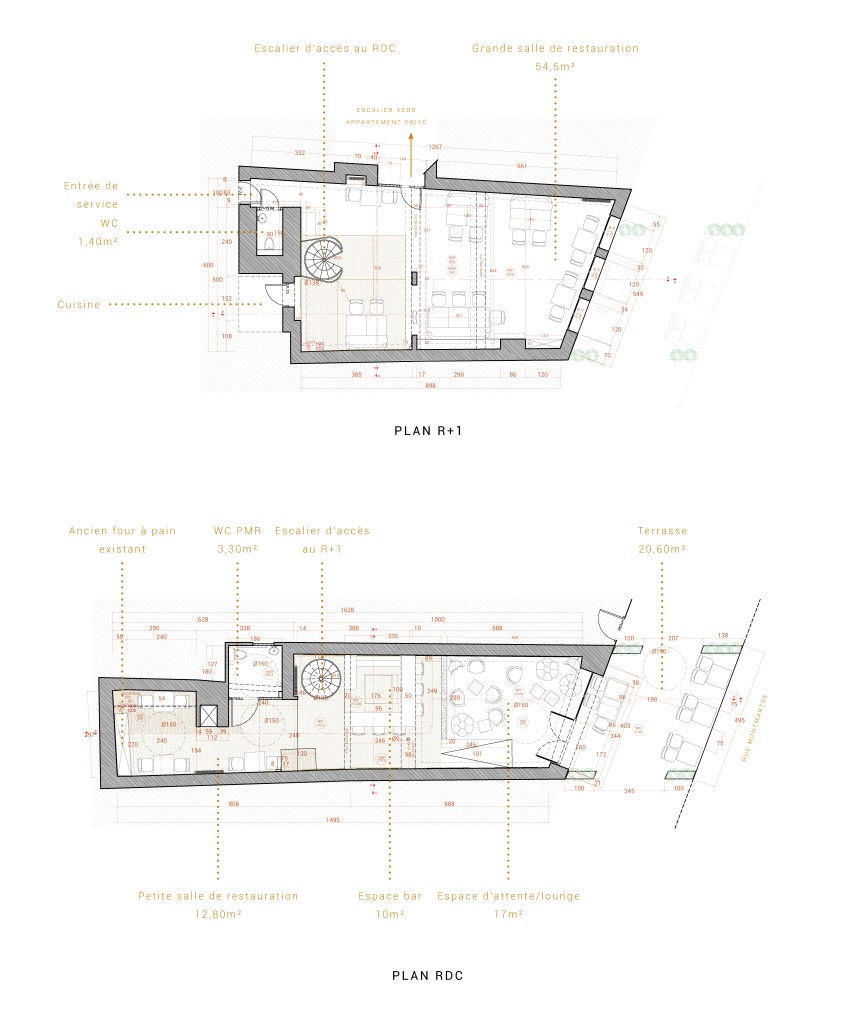
Dossier d’urbanisme
Je vous propose la réalisation de vos dossiers d’urbanisme (permis de construire, déclaration préalable) de la conception de votre projet au dossier final


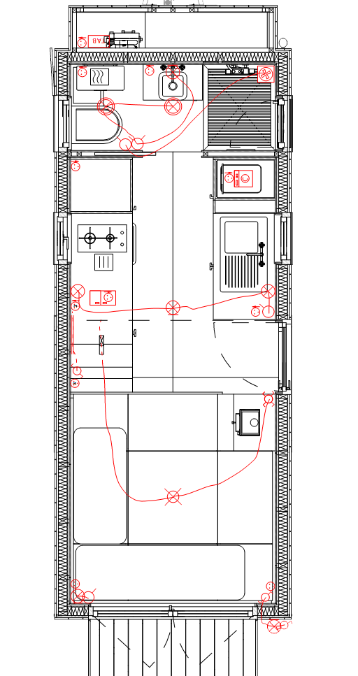
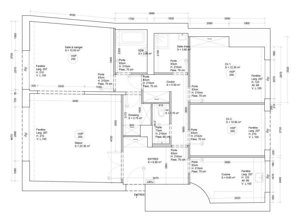
Dessin 2D
De la phase d’esquisse jusqu’aux pièces nécessaires au dépôt de permis, je vous accompagne dans la réalisation de votre projet










Dessin 3D
Pour comprendre davantage le projet ou pour une présentation de celui-ci, je réalise pour vous le montage de la maquette 3D









Rendus photoréalistes
Pour plus de réalisme pour la présentation de vos projets, je vous propose des images 3D photoréalistes.







Prise de vue
Je vous propose de mettre en avant vos projets en cours ou achevés à l’aide de la photographie aérienne réalisée à l’aide d’un drone professionnel.





